Withdrawn | Lot 34

Chesterfield Lodge, West Street, Cromer, Norfolk NR27 9DT

Withdrawn

  • Block of Apartments
  • 4 Bedrooms
  • Tenure: Freehold

Call the team on 01603 505 100 for more information

Auction Date

Wed 30/07/2025

Auction Time

10:00

Auction Venue

Livestream Auction

An opportunity to acquire Chesterfield Lodge, a Grade II listed property currently configured as two substantial, self contained apartments.

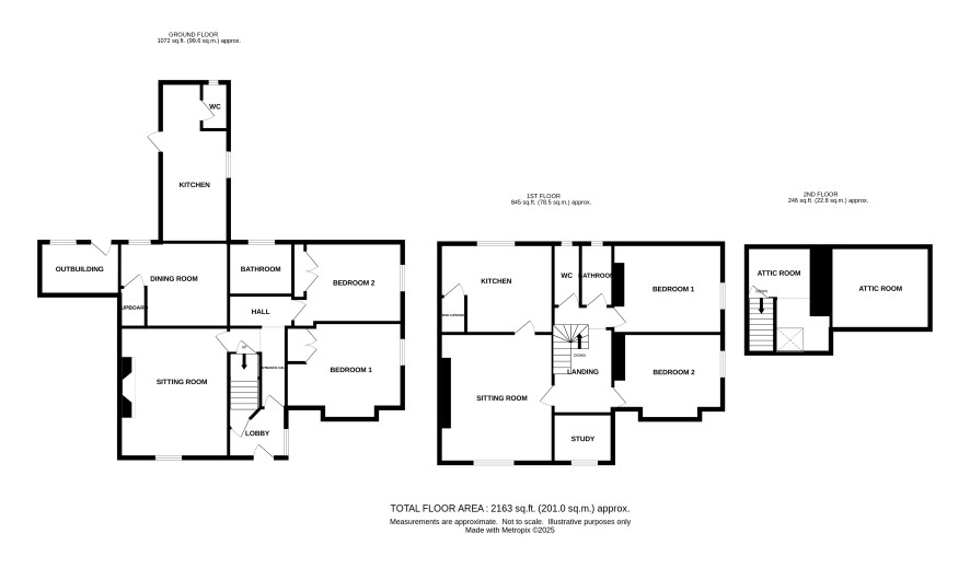
Chesterfield Lodge is an attractive Grade II listed property set in the heart of Cromer. The property is currently configured as two self-contained apartments, each held under separate leasehold titles together with the freehold title. Offered with vacant possession. The building has significant character and offers potential to be re-instated as a single dwelling, subject to all the necessary planning permission and listed buildings consent. The ground floor apartment is a spacious two-bedroom unit offering generous living accommodation to include sitting room, dining room, kitchen, two bedrooms, bathroom and access to the enclosed courtyard rear garden. The first-floor apartment comprises a sitting room, kitchen/dining room, study, bathroom with separate cloakroom two bedrooms including stairs to two attic rooms offering further scope for use as additional bedrooms, office space or storage. Garden to front and side. There is parking to the rear of the property. Situated within the heart of Cromer within a short walk to both the sea front and local amenities. With regards to the availability of a lease extension please refer to the special conditions in the legal pack.

Tenure

Freehold

Ground Floor Apartment

Entrance hall, sitting room, kitchen, cloakroom, main bathroom, two double bedrooms

First Floor Apartment

Sitting room, kitchen/breakfast room, two bedrooms, study, bathroom with separate cloakroom, two attic rooms.

Outside

Enclosed courtyard garden to the rear front and side gardens with off road parking to rear.

Council Tax Band

Band B

Lease Details

Term: 99 years from 25 March 1984 (68 years remaining) Annual ground rent amount: £50 per apartment Ground rent review period: Please refer to legal pack Annual service charge amount: Please refer to legal pack Service charge review period: Please refer to legal pack

Agents Note

With Regards to the availability of a lease extension please refer to the special conditions in the legal pack.

Listed Entry

List Entry Number: 1039612

Services

Gas fired central heating, mains electricity, water and drainage.

Viewings

Viewings are available by appointment only. To book a viewing please contact the Norwich office.

Require a Mortgage or Loan?

We strongly advise that your finance is fully approved prior to bidding. Please be aware that an Agreement in Principle (AIP) may not be sufficient. Should your lender be unable to proceed post-auction, you risk losing your deposit and incurring significant costs. To ensure you are fully prepared, contact our team today to discuss auction finance options and secure funding before bidding.

Energy Efficiency Rating (EPC)

Current Rating 1 - E, 2 - F

Services

Interested parties are requested to make their own enquiries to the relevant authorities as to the availability of services.

Local Authority

North Norfolk District Council

Solicitors

Spire Solicitors LLP (Norwich), Ref: Tracy Guest, Tel: 01603 886221

Important Notice to Prospective Buyers:

We draw your attention to the Special Conditions of Sale within the Legal Pack, referring to other charges in addition to the purchase price which may become payable. Such costs may include Search Fees, reimbursement of Sellers costs and Legal Fees, and Transfer Fees amongst others.

Additional Fees

Buyer's Premium - £960 inc VAT payable on exchange of contracts.

Administration Charge - £1200 inc VAT payable on exchange of contracts.

Disbursements - Please see the legal pack for any disbursements listed that may become payable by the purchaser on completion.

View Larger Map

Disclaimer: The map preview provided above is for general guidance only and may not accurately reflect the exact location or surrounding buildings. Prospective buyers and interested parties are strongly advised to independently verify the precise location and surroundings before bidding.