For Sale By Auction | 10:00, 07 May 2026 | Lot 92

Crown House, High Street, Ludham, Great Yarmouth, Norfolk NR29 5QE

Sold £200,000

  • Semi-Detached House
  • 4 Bedrooms
  • Tenure: Freehold

Call the team on 01603 505 100 for more information

Auction Date

Thu 07/05/2026

Auction Time

10:00

Auction Venue

Livestream Auction

A rare opportunity to acquire a substantial four bedroom residence in the heart of Ludham.

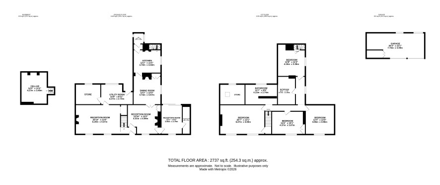
An opportunity to acquire this charming 18th century semi-detached period property, occupying a central village position within a conservation area in Ludham, an attractive village within the Norfolk Broads, known for its community feel, local amenities, and proximity to waterways and countryside. Believed to date back to circa 1752, the property originally traded as a public house known as The Crown. Over time, it has served a variety of commercial purposes, including a merchant’s premises trading in corn and coal, before being converted into a private residence. Crown House now requires a comprehensive programme of renovation and modernisation, offering excellent scope for improvement, making it ideal for: owner occupiers seeking a project and investors. The accommodation is arranged over two floors and currently comprises: four receptions, three bath/shower rooms, two kitchens, four bedrooms. and a cellar. The layout provides flexibility for reconfiguration and enhancement (subject to the necessary consents). Externally, coach house, courtyard garden with lawned area.

Tenure

Freehold

Ground floor

Four reception rooms, two kitchens, store room, shower room, cloakroom and cellar.

First Floor

Four Bedroom, two bathrooms.

Outside

Enclosed rear garden and laned area, Outbuilding - cart lodge

Services

Electric heating, mains water and drainage.

Viewings

Viewings are currently being arranged Tuesday 21st April, Monday 27th April, Friday 1st May. Please call Norwich office to book your slot.

Council Tax Band

E

Energy Efficiency Rating (EPC)

Current Rating F

Services

Interested parties are requested to make their own enquiries to the relevant authorities as to the availability of services.

Local Authority

North Norfolk District Council

Solicitors

Leathes Prior (The Close), Ref: Rachael Hughes, Tel: 01603 281004

Important Notice to Prospective Buyers:

We draw your attention to the Special Conditions of Sale within the Legal Pack, referring to other charges in addition to the purchase price which may become payable. Such costs may include Search Fees, reimbursement of Sellers costs and Legal Fees, and Transfer Fees amongst others.

Additional Fees

Buyer's Premium - £960 inc VAT payable on exchange of contracts.

Administration Charge - £1200 inc VAT payable on exchange of contracts.

Disbursements - Please see the legal pack for any disbursements listed that may become payable by the purchaser on completion.

View Larger Map

Disclaimer: The map preview provided above is for general guidance only and may not accurately reflect the exact location or surrounding buildings. Prospective buyers and interested parties are strongly advised to independently verify the precise location and surroundings before bidding.