For Sale By Auction | 12:00, 13 September 2019 | Lot 55

1 Station Road, Littleport, Ely, Cambridgeshire, CB6 1QE

Sold After

  • Detached House
  • 6 Bedrooms
  • Tenure: Freehold

Call the team on 01733 889833 for more information

Auction Date

Fri 13/09/2019

Auction Time

12:00

Auction Venue

The Great Barn Knights Hill Hotel and Spa, South Wootton, Kings Lynn, PE30 3HQ

Viewing Times:

Fri 23 Aug

13:00-13:30

Fri 30 Aug

13:00-13:30

Fri 6 Sep

13:00-13:30

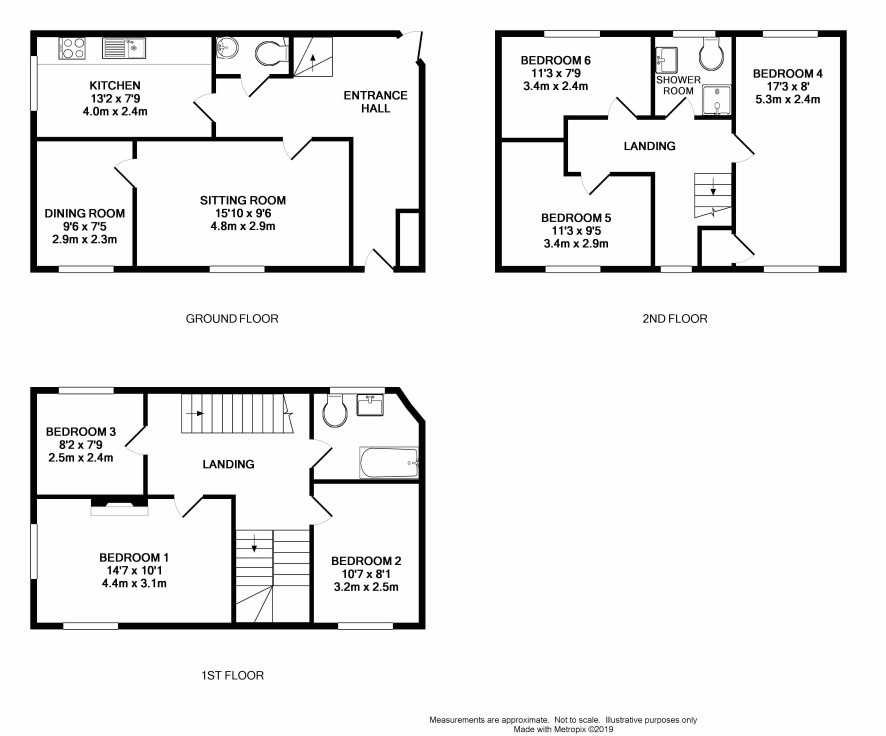
A well proportioned end terrace six bedroom house with accommodation on three levels in need of modernisation and improvement.

This six bedroom house would be ideal for an investor looking to creat,e with the necessary planning and licences, a six bedroom HMO. The accommodation has lounge, kitchen, dining room and a cloaks/w.c.on the ground floor. Three beds and a bathroom on the first floor and three further bedrooms and a bathroom on the second floor. Littleport is located north of the famous Cathedral City of Ely with local shops and a main line rail link into Ely, Cambridge and London Kings Cross.

Tenure

Freehold

Ground Floor

Hall, cloaks/w.c., lounge, dining room,kitchen

First Floor

Three bedrooms, bathroom.

Second Floor

Three bedrooms, shower room.

Outside

Gardens at rear.

Energy Efficiency Rating (EPC)

Current Rating E

Services

Interested parties are requested to make their own enquiries to the relevant authorities as to the availability of services.

Local Authority

East Cambridgeshire District Council

Solicitors

Notary Express, 12 Upper King Street, Norwich, NR3 1HA, Ref: Charlie Bowden, Tel: 0333 122 221

Important Notice to Prospective Buyers:

We draw your attention to the Special Conditions of Sale within the Legal Pack, referring to other charges in addition to the purchase price which may become payable. Such costs may include Search Fees, reimbursement of Sellers costs and Legal Fees, and Transfer Fees amongst others.

Additional Fees

Administration Charge - 0.3% inc VAT of the purchase price, subject to a minimum of £900 inc VAT, payable on exchange of contracts.

Disbursements - Please see the legal pack for any disbursements listed that may become payable by the purchaser on completion.

View Larger Map

Disclaimer: The map preview provided above is for general guidance only and may not accurately reflect the exact location or surrounding buildings. Prospective buyers and interested parties are strongly advised to independently verify the precise location and surroundings before bidding.