For Sale By Auction | 18:30, 26 February 2019 | Lot 14

40 Front Street, Morton, Gainsborough, Lincolnshire, DN21 3AE

Sold

  • Semi-Detached House
  • 3 Bedrooms
  • Tenure: Freehold

Call the team on 01427 616436 for more information

Auction Date

Tue 26/02/2019

Auction Time

18:30

Auction Venue

Thonock Park (Gainsborough Golf Club) Belt Road, Thonock, Gainsborough, DN21 1PZ

Situation: The property is situated in an established and popular residential area in the village of Morton near to the Parish Church, convenience store, Public House and the principal schools. Gainsborough town centre and the prestigious Marshalls Yard Retail, Commercial and Leisure complex are within 1.5 miles. Description: The property comprises a semi detached house, requiring a scheme of renovation works having the benefit of gas fired central heating and double glazing suitable for the owner occupier or invester. The accommodation comprises

Tenure

Freehold

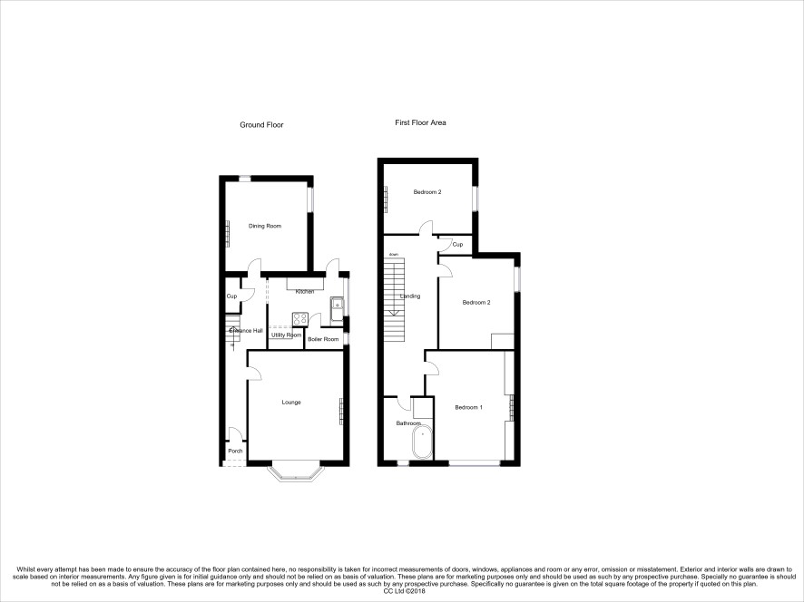
Ground Floor:

Entrance Porch: Entrance Hall: Double glazed front door, archway, radiator. Sitting Room: 4.32m x 3.76m (14’2 x 12’4) plus double glazed bay window, living coal effect gas fire in surround with marble inset and hearth, two radiators. Rear Hall: Understairs cupboard. Dining Room: 3.65m x 3.61m (11’11 x 11’10) secondary double glazed windows, modern tiled fireplace with fitted gas fire, two radiators. Kitchen: 2.98m x 2.05m (9’9 x 6’8) stainless steel sink unit, mixer tap, plumbing for automatic washing machine, built in cupboards, radiator. Recess with fitted cupboards. Pantry. Wall mounted Ideal gas fired combination boiler for central heating and domestic hot water.

Staircase to First Floor Landing:

Archway. Front Bedroom: 4.34m x 2.99m (14'2 x 9'9) average. Two double and single built in wardrobes with locker cupboards over, double glazed window, radiator. Bedroom: 3.04m x 3.07m (9'11 x 10'0) double glazed window, radiator. Bedroom: 2.80m x 2.65m (9'2 x 8'8) double glazed window, radiator. Bathroom: 2.58m x 1.50m (8'5 x 4'11) including former airing cupboard, pedestal wash hand basin, panelled bath, double glazed window, radiator. Seperate W.C.: Low flush suite. Outside: Front garden with wrought iron fencing. Side pathway to enclosed and private patio rear garden with tember and felt garden store.

General Remarks

Possession: Vacant possession will be given upon completion. Viewing: Strictly by appointment with Auction House. Services: Prospective purchasers are advised to make their own enquiries of the relevant statutory authorities. NB: Services, Apparatus and Equipment have not been tested by Auction House and therefore cannot be verified as being in working order. The buyer is advised to obtain verification from their Solicitor/Surveyor. These particulars are believed to be correct but their accuracy is not guaranteed and they do not form any part of any contract. Information relating to Rating and Town & Country Planning matters has been obtained by verbal enquiry only. Prospective purchasers are advised to make their own enquiries of the appropriate Authority. All measurements, areas and distances are approximate only. Potential purchasers are advised to check them.

Energy Efficiency Rating (EPC)

Current Rating E

Services

Interested parties are invited to make their own enquiries to the relevant authorities as to the availability of the services.

Local Authority

West Lindsey District Council

Solicitors

HSR Law, Staynor House, Newborn Court, Chapel Street, Epworth, DN9 1HH, Ref: Alan Marlow, Tel: 01427 872206

Important Notice to Prospective Buyers:

We draw your attention to the Special Conditions of Sale within the Legal Pack, referring to other charges in addition to the purchase price which may become payable. Such costs may include Search Fees, reimbursement of Sellers costs and Legal Fees, and Transfer Fees amongst others.

Additional Fees

Administration Charge - £750 inc VAT payable on exchange of contracts.

Disbursements - Please see the legal pack for any disbursements listed that may become payable by the purchaser on completion.

View Larger Map

Disclaimer: The map preview provided above is for general guidance only and may not accurately reflect the exact location or surrounding buildings. Prospective buyers and interested parties are strongly advised to independently verify the precise location and surroundings before bidding.