Sold Prior | Lot 74

97 Tennyson Place, Ely, Cambridgeshire CB6 3WF

Sold Prior

  • Semi-Detached House
  • 3 Bedrooms
  • Tenure: Freehold

Call the team on 01733 889833 for more information

Auction Date

Wed 14/09/2022

Auction Time

11:00

Auction Venue

Livestream Auction

A semi detached three bedroom house with a potential rental income of £1,000 pcm offered with vacant possession

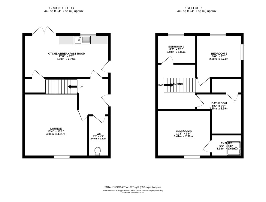
This three bedroom semi detached house is located within a new development on the west of the city of Ely. The house is offered with vacant possession and has a potential rental income of £1,000 pcm. The property has a hall, lounge, kitchen/breakfast room, a cloaks W.C with a master bedroom with en-suite, two further bedrooms and a bathroom on the first floor. Outside at rear provides a rear garden with a side access and a garage with driveway. The city of Ely is located north of Cambridge and has the historic Cathedral together with shopping and recreational facilities and a main line rail link into Cambridge and London Kings Cross.

Tenure

Freehold

Ground floor

Hall, cloaks W.C, lounge, kitchen/breakfast room.

First Floor

Master bedroom with en-suite shower, two further bedrooms, family bathroom.

Outside

Gardens to rear, single garage.

Council Tax Band

C

Energy Efficiency Rating (EPC)

Current Rating C

Services

Interested parties are requested to make their own enquiries to the relevant authorities as to the availability of services.

Local Authority

East Cambridgeshire District Council

Solicitors

Freeths LLP (Oxford), Ref: Masood Ahmed, Tel: 01865 781000

Important Notice to Prospective Buyers:

We draw your attention to the Special Conditions of Sale within the Legal Pack, referring to other charges in addition to the purchase price which may become payable. Such costs may include Search Fees, reimbursement of Sellers costs and Legal Fees, and Transfer Fees amongst others.

Additional Fees

Administration Charge - 0.3% inc VAT of the purchase price, subject to a minimum of £1200 inc VAT, payable on exchange of contracts.

Disbursements - Please see the legal pack for any disbursements listed that may become payable by the purchaser on completion.

View Larger Map

Disclaimer: The map preview provided above is for general guidance only and may not accurately reflect the exact location or surrounding buildings. Prospective buyers and interested parties are strongly advised to independently verify the precise location and surroundings before bidding.