Sold Prior | Lot 39

Hempstead End, North Gap, Eccles-On-Sea, Norfolk NR12 0SN

Sold Prior

  • Semi-Detached House
  • 4 Bedrooms
  • Tenure: Freehold

Call the team on 01603 505 100 for more information

Auction Date

Wed 08/02/2023

Auction Time

11:00

Auction Venue

Livestream Auction

Unique opportunity to acquire this semi detached property in need of full structural repair located in desirable spot near the dunes of the North Norfolk Coast

Unique opportunity to acquire this three storey semi-detached house by the sea. In need of full structural repair this family home has been owned by the current owner since 1982 and is now awaiting full restoration. The property occupies a large plot and a gate providing vehicular access. Situated beyond the sand dunes and offering far reaching views of the landscape from all aspects. Eccles on Sea is a beautiful North Norfolk village offering superb beaches and the property would make an ideal holiday home. Viewing is highly recommended. Note: This property has subsidence issues and therefore will need to be sold to CASH BUYERS ONLY

Tenure

Freehold

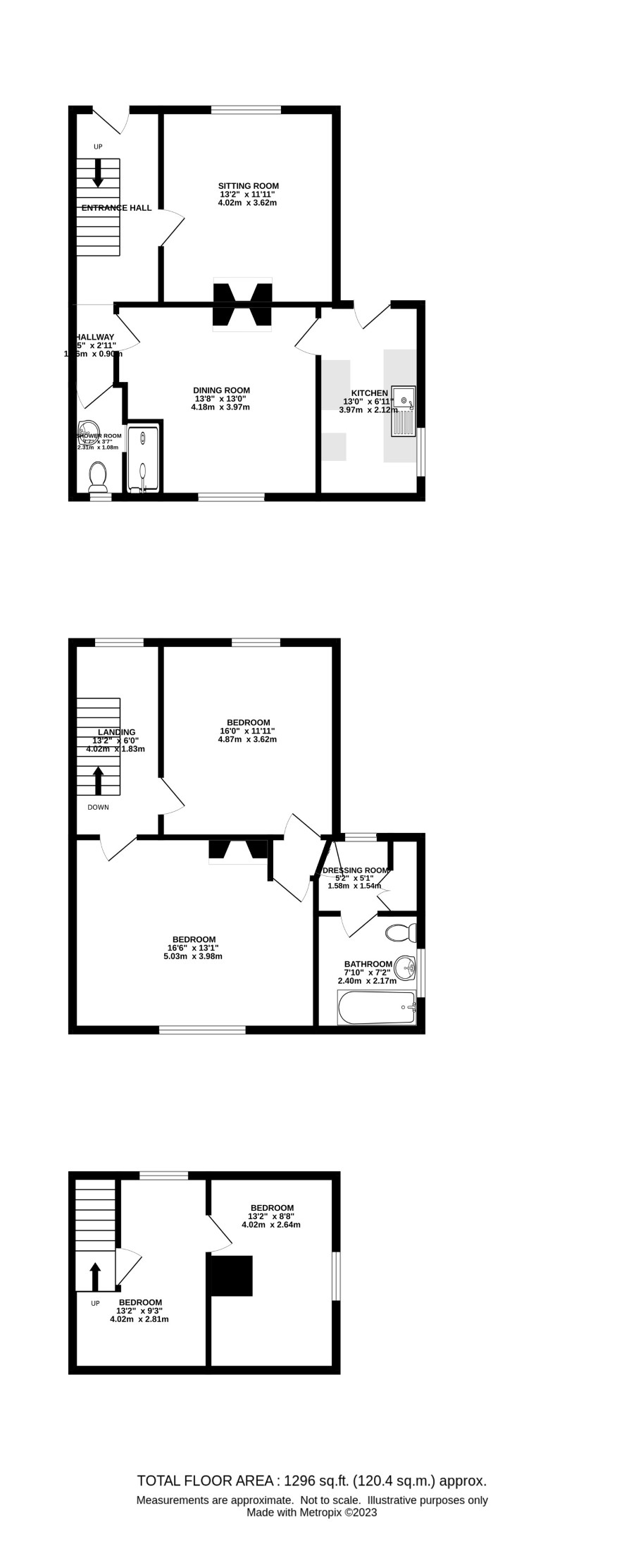
Ground Floor

Hall, sitting room, dining room, kitchen, shower room stairs to first floor

First Floor

Landing, two double rooms connecting to small landing leading to dressing room and family bathroom, stairs to second floor

Second Floor

Two inter-connecting bedrooms

Outside

A large steel gate provides vehicular access to the south facing rear garden. This generous garden offers a brick outbuilding and a large vegetable patch. This is a splendid feature of the property.

Council Tax Band

C

Viewings

Open days have been arranged and the next is Thursday, 2 February. Please call the Norwich office to book a viewing.

Energy Efficiency Rating (EPC)

Current Rating G

Services

Interested parties are requested to make their own enquiries to the relevant authorities as to the availability of services.

Local Authority

North Norfolk District Council

Solicitors

Birketts (Ipswich), Ref: Louise Chew, Tel: 01473 406245

Offered in association with

Aldreds (Stalham)

Important Notice to Prospective Buyers:

We draw your attention to the Special Conditions of Sale within the Legal Pack, referring to other charges in addition to the purchase price which may become payable. Such costs may include Search Fees, reimbursement of Sellers costs and Legal Fees, and Transfer Fees amongst others.

Additional Fees

Buyer's Premium - £960 inc VAT payable on exchange of contracts.

Administration Charge - 0.3% inc VAT of the purchase price, subject to a minimum of £1200 inc VAT, payable on exchange of contracts.

Disbursements - Please see the legal pack for any disbursements listed that may become payable by the purchaser on completion.

View Larger Map

Disclaimer: The map preview provided above is for general guidance only and may not accurately reflect the exact location or surrounding buildings. Prospective buyers and interested parties are strongly advised to independently verify the precise location and surroundings before bidding.