For Sale By Auction | 11:00, 01 May 2024 | Lot 28

33 Saracen Road, Norwich, Norfolk NR6 6PA

Sold £183,000

  • Semi-Detached Bungalow
  • 3 Bedrooms
  • Tenure: Freehold

Call the team on 01603 505 100 for more information

Auction Date

Wed 01/05/2024

Auction Time

11:00

Auction Venue

Livestream Auction

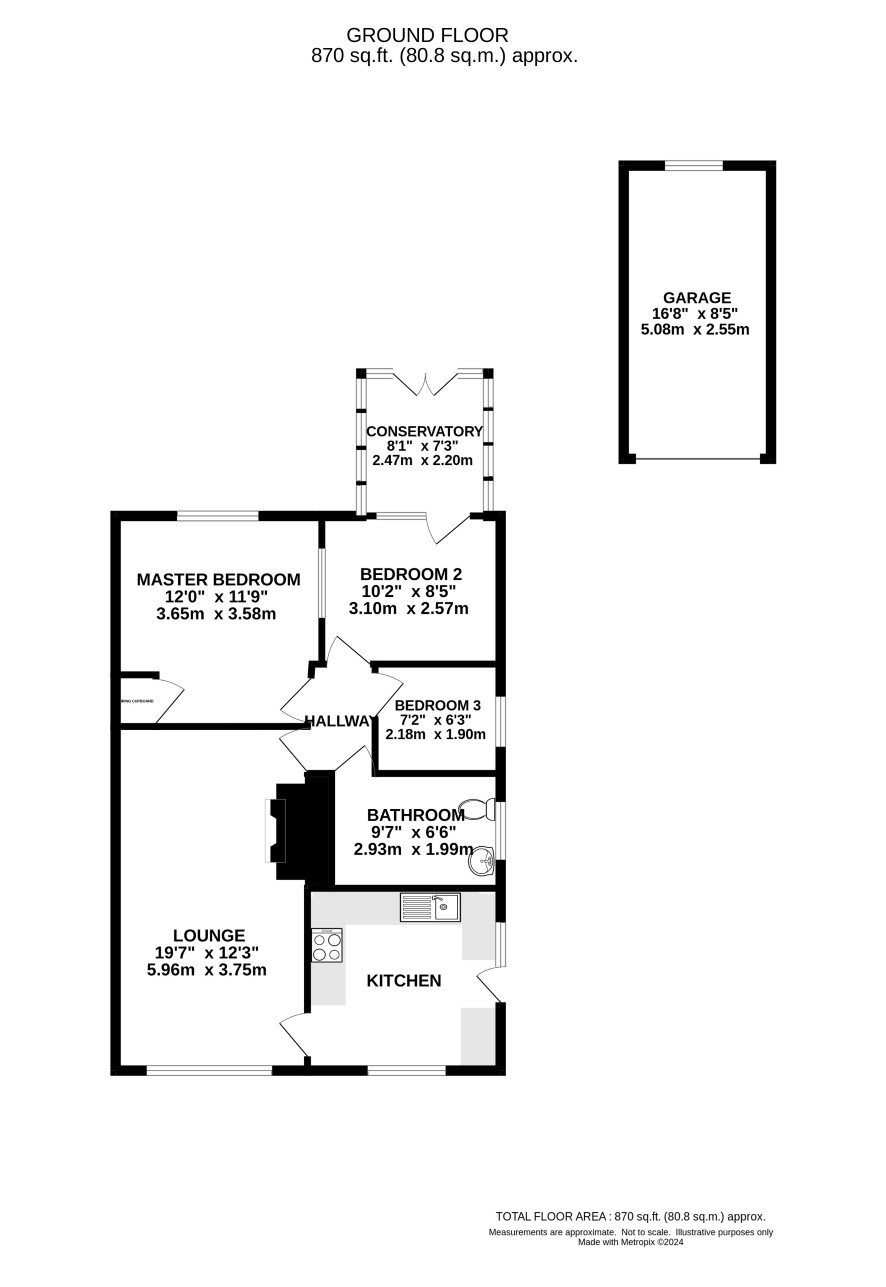
Three bedroom semi-detached bungalow in need of updating with driveway, garage and garden, situated in Hellesdon

This three bedroom semi-detached bungalow is situated in the well-known and popular area of Norwich known as Hellesdon. The bungalow has been well cared for but is now in need of some updating. It benefits from generous brick weave drive entrance with access ramp and single garage with electric shutter door. To the rear is a west facing garden with patio and conservatory. Subject to the necessary planning consents, the bungalow offers potential to extend into the roof, which has been done in several properties in the area including the neighbouring property. Offering kitchen/diner, lounge, inner hall, wet room and three bedrooms, one which leads to the conservatory. Another is a small bedroom and would be ideal for a staircase to be made to any first floor expansion.

Tenure

Freehold

Accommodation

Kitchen/Diner, lounge, inner hall, three bedrooms, conservatory, wet room

Exterior

Walled front garden with brick weave drive providing parking, less abled ramp for access, single brick garage with electric shutter door, west facing rear garden in need of some attention

Viewings

Open viewings are arranged for Friday 19 April. Please call the Norwich office to book an appointment.

Energy Efficiency Rating (EPC)

Current Rating D

Services

Interested parties are requested to make their own enquiries to the relevant authorities as to the availability of services.

Local Authority

Broadland District Council

Solicitors

Hatch Brenner, Ref: Sarah Finn, Tel: 01603 660811

Offered in association with

Normove

Important Notice to Prospective Buyers:

We draw your attention to the Special Conditions of Sale within the Legal Pack, referring to other charges in addition to the purchase price which may become payable. Such costs may include Search Fees, reimbursement of Sellers costs and Legal Fees, and Transfer Fees amongst others.

Additional Fees

Buyer's Premium - £960 inc VAT payable on exchange of contracts.

Administration Charge - 0.3% inc VAT of the purchase price, subject to a minimum of £1200 inc VAT, payable on exchange of contracts.

Disbursements - Please see the legal pack for any disbursements listed that may become payable by the purchaser on completion.

View Larger Map

Disclaimer: The map preview provided above is for general guidance only and may not accurately reflect the exact location or surrounding buildings. Prospective buyers and interested parties are strongly advised to independently verify the precise location and surroundings before bidding.