For Sale By Auction | 10:00, 25 March 2026 | Lot 123a

24 High Street, Lode, Cambridge, Cambridgeshire CB25 9EW

*Guide | £390,000 (plus fees)

  • House (unspecified)
  • 4 Bedrooms
  • Tenure: Freehold

Call the team on 01733 889833 for more information

Auction Date

Wed 25/03/2026

Auction Time

10:00

Auction Venue

Livestream Auction

A large property, ready to be restored into a family residence offering an exceptionally large ground floor area and four bedrooms on the first floor.

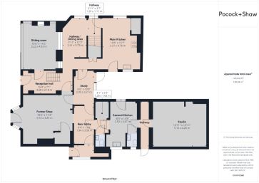
This former village stores offers large accommodation on two floors with the former shop/reception room, studio room, sunken sitting room, kitchen, second kitchen area, four bedrooms, two en-suites and a bathroom. Outside provides a courtyard area and a roof terrace. The studio room could easily be converted back to a double garage and the downstairs area has potential for conversion to a separate flat with it’s own access. Lode is situated seven miles north of Cambridge and has the famous National Trust Anglesey Abbey in the village. Cambridge provides two stations into London.

Tenure

Freehold

Ground floor

Reception hall, dining area, kitchen, study, former shop, w.c. second kitchen, studio, sitting room.

First Floor

Landing, four bedrooms, two with en-suites and a family bathroom.

Outside

Enclosed courtyard and a roof terrace.

Council Tax Band

E

Energy Efficiency Rating (EPC)

Current Rating D

Services

Interested parties are requested to make their own enquiries to the relevant authorities as to the availability of services.

Local Authority

East Cambridgeshire District Council

Solicitors

Stanton Partners, Ref: Claire Stanton, Tel: 0191 427 0770

Offered in association with

Pocock & Shaw

Important Notice to Prospective Buyers:

We draw your attention to the Special Conditions of Sale within the Legal Pack, referring to other charges in addition to the purchase price which may become payable. Such costs may include Search Fees, reimbursement of Sellers costs and Legal Fees, and Transfer Fees amongst others.

Additional Fees

Buyer's Premium - £1200 inc VAT payable on exchange of contracts.

Administration Charge - £1200 inc VAT payable on exchange of contracts.

Disbursements - Please see the legal pack for any disbursements listed that may become payable by the purchaser on completion.

View Larger Map

Disclaimer: The map preview provided above is for general guidance only and may not accurately reflect the exact location or surrounding buildings. Prospective buyers and interested parties are strongly advised to independently verify the precise location and surroundings before bidding.